特定非営利活動法人 地域ひといきでは子育て支援を中心に活動しつつ、お金がない、想いで回る経済を創るために活動しています。
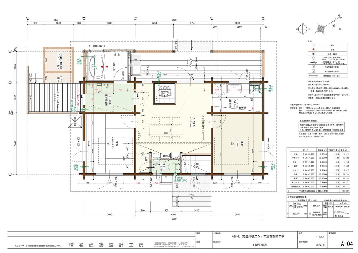
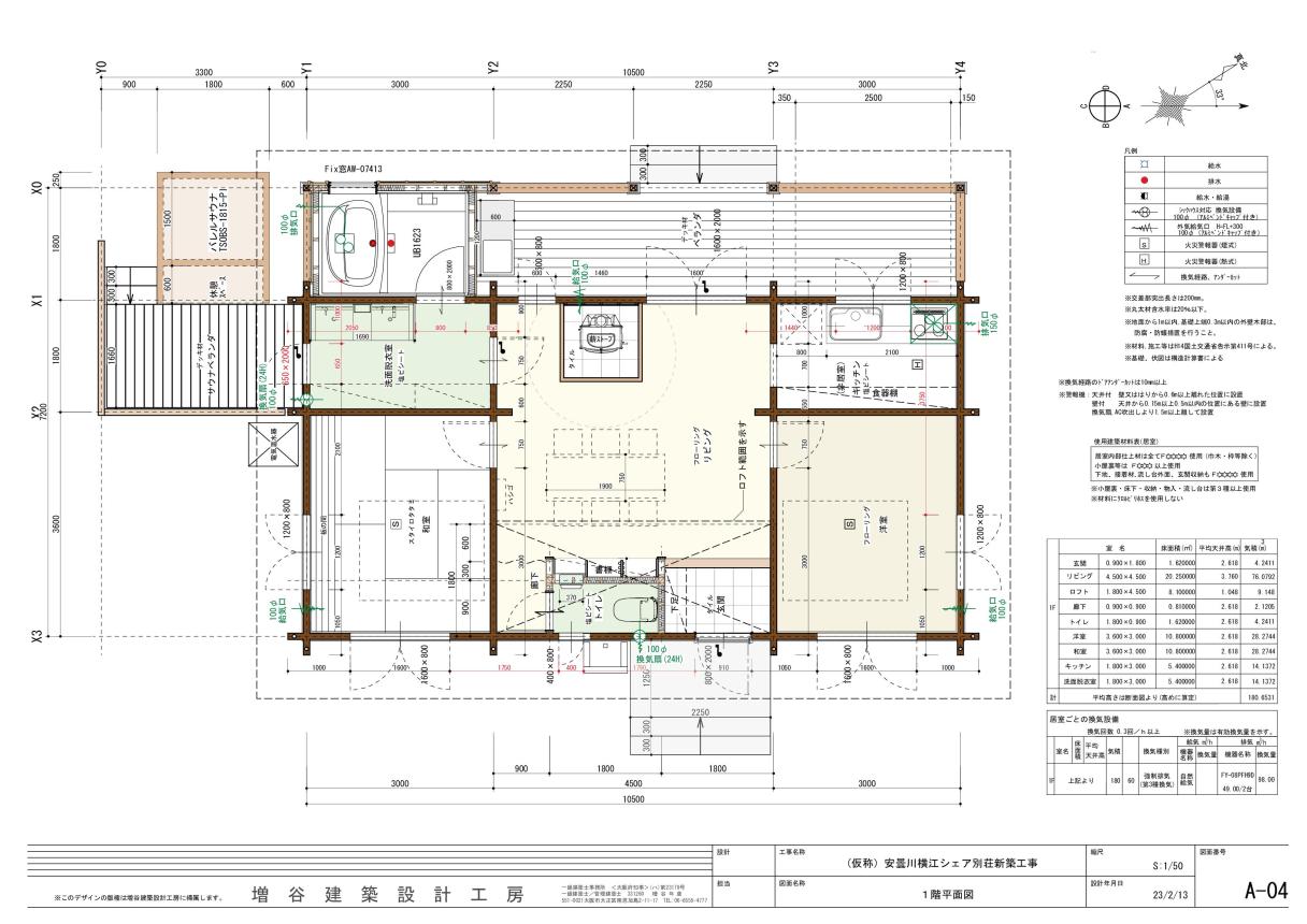
今回は琵琶湖近くに誰もが余暇活動を楽しめる。【無料のシェア別荘】をみんなの手で建てようと計画を進めております。
一所懸命にやっておりますが、Lクラスお風呂、樽サウナ、お庭の遊具の費用が予算オーバーしてしまいそうです( ;∀;)
せっかく、創るのならば、ちょっとでも皆様に喜んでいただきたい。ご支援頂けますと嬉しいです。
2023-07-23 00:005段目まで完成本日は25名を越える人の力でかなりのスピードで作業が進みました。 皆様、ありがとうございました!!2023-07-23 00:005段目まで完成本日は25名を越える人の力でかなりのスピードで作業が進みました。 皆様、ありがとうございました!!
2023-07-06 18:22予算を大幅にオーバー中( ;∀;)1000万ぐらいで何とか出来たら。1500万で何とかできるだろう。 と思っていましたが(;^_^A 2000万を越えるぐらいの費用がかかりそう( ;∀;) それでもなお、これを皆様に無料で提供します。 命懸けって言ってるからね。みんなが地域ひといきを見捨てるか?救うか? 地域ひといきがそこまでして、何を見せたいのか?命を完全燃焼させたら分かります。2023-07-06 18:22予算を大幅にオーバー中( ;∀;)1000万ぐらいで何とか出来たら。1500万で何とかできるだろう。 と思っていましたが(;^_^A 2000万を越えるぐらいの費用がかかりそう( ;∀;) それでもなお、これを皆様に無料で提供します。 命懸けって言ってるからね。みんなが地域ひといきを見捨てるか?救うか? 地域ひといきがそこまでして、何を見せたいのか?命を完全燃焼させたら分かります。



